Van Hogendorpstraat 168, Den Haag

  • Omschrijving

    Bedrijfsruimte te huur van in totaal circa 658 m² BVO, gelegen aan de Van Hogendorpstraat 168 te Den Haag. De Van Hogendorpstraat ligt in een woonomgeving aan de rand van het oude centrum van Den Haag.

     

    Deelverhuur is mogelijk vanaf circa 215 m² BVO.

     

    Adres

    Van Hogendorpstraat 168, 2515 NX te Den Haag.

     

    Parkeren

    In de directe omgeving zijn straatparkeerplaatsen beschikbaar.

     

    Vloeroppervlak

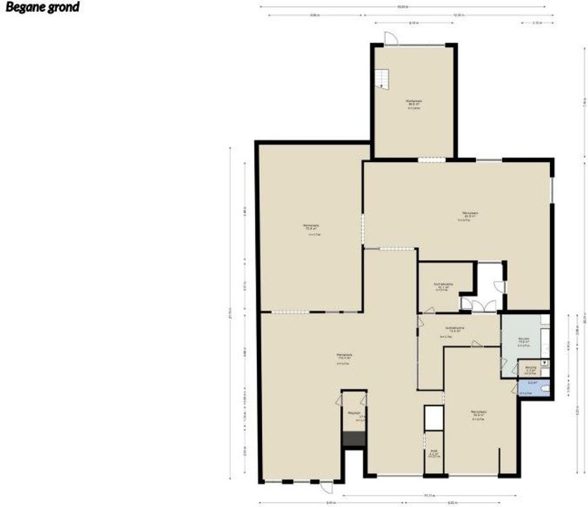
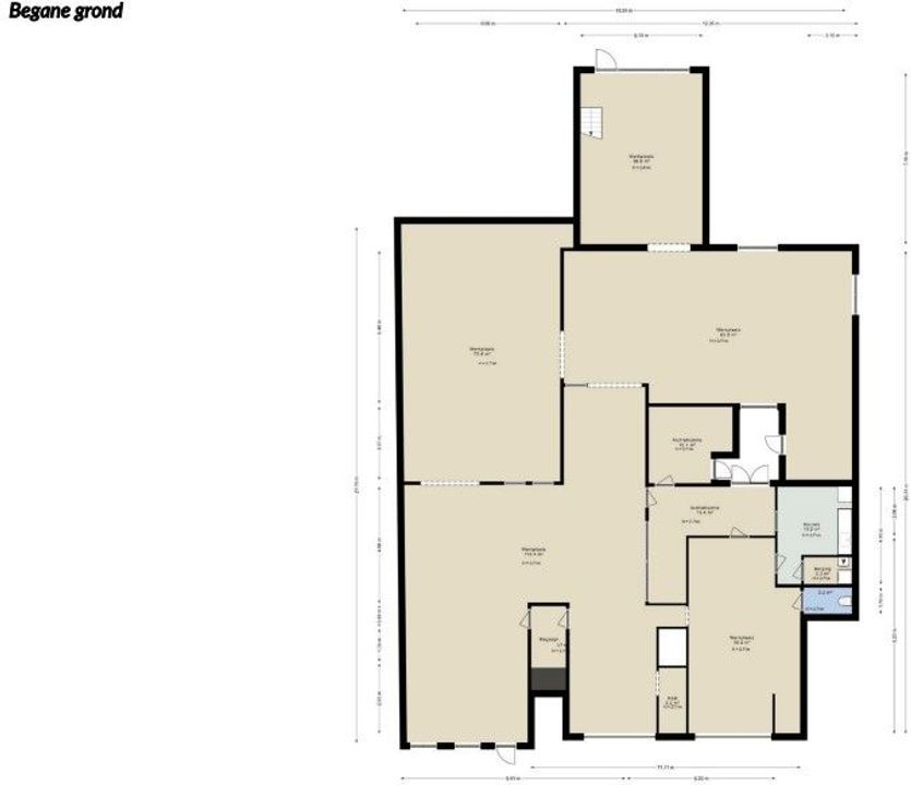
    Bedrijfsruimte en secundaire ruimtes, in totaal circa 658 m² BVO, onderverdeeld als volgt:

    • Begane grond: circa 435 m² BVO.
    • Eerste verdieping: circa 133 m² BVO.
    • Vliering: circa 89,3 m² BVO.

     

    Deelverhuur is mogelijk vanaf circa 215 m² BVO.

     

    Frontbreedte

    Circa 16 meter.

     

    Gebruik

    De ruimte is bestemd om te worden gebruik als garagebedrijf (op de begane grond).

     

    Voor het gehele bestemmingsplan zie: www.omgevingswet.overheid.nl/regels-op-de-kaart/.

     

    Huurprijs

    € 5.650,- per maand, te vermeerderen met BTW.

     

    BTW

    Verhuurder zal opteren voor een met BTW belaste verhuur, huurder verleent hiertoe zijn medewerking.  Indien niet geopteerd kan worden voor BTW belaste verhuur zal de huurprijs met een nader te bepalen bedrag worden verhoogd.

     

    Huurprijsaanpassing

    Jaarlijks, voor het eerst één jaar na ingangsdatum huurovereenkomst, op basis van de wijziging van het maandprijsindexcijfer volgens de consumentenprijsindex (CPI), reeks CPI alle huishoudens (2015=100), gepubliceerd door het Centraal Bureau voor de Statistiek (CBS). De volgens het bovenstaande geïndexeerde huurprijs zal nimmer lager zijn dan die van de voorafgaande huurjaren.

     

    Servicekosten

    Niet van toepassing.

    Huurder dient voor eigen rekening en risico overeenkomsten te sluiten met de desbetreffende (nuts)bedrijven.

     

    Bijdrage winkeliersvereniging / Bedrijveninvesteringszone (BIZ)

    Niet bekend. 

     

    Betalingen

    Per kalendermaand vooruit. 

     

    Opleveringsniveau / Staat van verhuur

    Verhuurd wordt uitsluitend het casco, maar de ruimte wordt opgeleverd in de staat van dat moment. Eventueel in het gehuurde aanwezige zaken en voorzieningen maken geen deel uit van het gehuurde. Onderhoud en vervanging van deze zaken en voorzieningen zijn voor rekening en risico van huurder. Bij het einde van de huurovereenkomst dient het gehuurde in casco staat te worden opgeleverd, tenzij anders door partijen schriftelijk is overeengekomen.

     

    Huurtermijn

    Minimaal 5 jaar met verlengingsperiodes van steeds 5 jaar. 

     

    Opzegtermijn

    12 maanden.

     

    Zekerheidsstelling

    Onvoorwaardelijke bankgarantie of waarborgsom ter grootte van een betalingsverplichting van tenminste drie maanden huur inclusief BTW.

     

    Huurovereenkomst

    Huurovereenkomst kantoorruimte en andere bedrijfsruimte in de zin van artikel 7:230a BW conform het model door de Raad voor Onroerende Zaken (ROZ) in 2015 vastgesteld, alsmede de daarbij behorende algemene bepalingen en bijzondere bepalingen van verhuurder.

     

    Energielabel

    Niet beschikbaar.

     

    Vloerbelasting

    Maximale vloerbelasting is niet meer dan constructief toegestaan.

     

    Aanvaarding

    Per direct beschikbaar.

     

    Courtage

    Mocht door bemiddeling van Local Joe een transactie tot stand komen, zult u ons hiervoor geen kosten of courtage verschuldigd zijn. 

     

    Informatie

    Voor meer informatie of een bezichtiging kunt u zich wenden tot: 

     

    Local Joe

    Telefoonnummer: +31 (0) 85 30 33 485

    E-mail: info@localjoe.nl

    Website: www.localjoe.nl

     

    Disclaimer

    Deze objectinformatie is met zorg samengesteld. Aan de verstrekte gegevens kan echter geen enkel recht worden ontleend en voor de juistheid ervan sluiten wij aansprakelijkheid uit. Deze objectinformatie mag niet worden beschouwd als aanbieding of offerte en wordt verstrekt onder het voorbehoud van goedkeuring door verhuurder c.q. verkoper.

  • Locatie

    [ { "address": "Van Hogendorpstraat 168", "zipCode": "2515 NX", "city": "Den Haag", "lat": 52.0715029, "lng": 4.3166631, "heading": 0, "pitch": 0 } ]
  • Kenmerken

    Overdracht

    Prijs
    € 5.650 p.m.
    Status
    Beschikbaar

    Bouw

    Hoofdbestemming
    Bedrijfsruimte
    Soort bouw
    Bestaande bouw

    Oppervlakten

    Totaaloppervlakte
    658m²
    Units vanaf
    215m²

    Omgeving

    Ligging
    elders, woonomgeving
  • Reageer

    Uw bericht is naar ons verzonden. Wij nemen zo snel mogelijk contact met u op.

    Er is iets mis gegaan met het versturen van het formulier.
    Controleer of u alle velden (goed) heeft ingevoerd en probeer het nog een keer.

    Hoe veel is ?  
  • Documenten

  • Plattegronden


Vergelijkbare objecten


Spuistraat 62
2511 BE Den Haag
€ 6.250 p.m.
Winkelruimte 101m²
Spuistraat 38
2511 BE Den Haag
Op aanvraag
Winkelruimte 105m²
Prinsestraat 98
2513 CG Den Haag
€ 6.000 p.m.
Winkelruimte 275m²
Maria Stuartplein 296
2595 BW Den Haag
€ 4.575 p.m.
Winkelruimte 219m²