Frederik Hendriklaan 223, Den Haag

  • Omschrijving

    Winkelruimte te huur van circa 150 m² BVO, gelegen aan de Frederik Hendriklaan 223 te Den Haag. De Frederik Hendriklaan ligt in de international zone van Den Haag, in de prachtige wijk het Statenkwartier. De Frederik Hendriklaan is een plek voor hoogwaardig winkelen en dagelijkse boodschappen. Er bevinden zich diverse lokale, regionale en nationale partijen, waaronder Albert Heijn, ICI Paris XL, Paagman, Albert Nolten Schoenen, Rituals, Oil & Vinegar en Simon de Vogel. Daarnaast zijn er diverse aantrekkelijke horecagelegenheden gevestigd.

     

    Zie voor meer informatie over het winkelgebied ook: www.defred.nl.

     

    Adres

    Frederik Hendriklaan 223, 2582 CC te Den Haag.

     

    Parkeren

    Langs de openbare weg zijn er voldoende parkeerplaatsen aanwezig (tot 13:00 uur is parkeren in de zijstraten gratis).

     

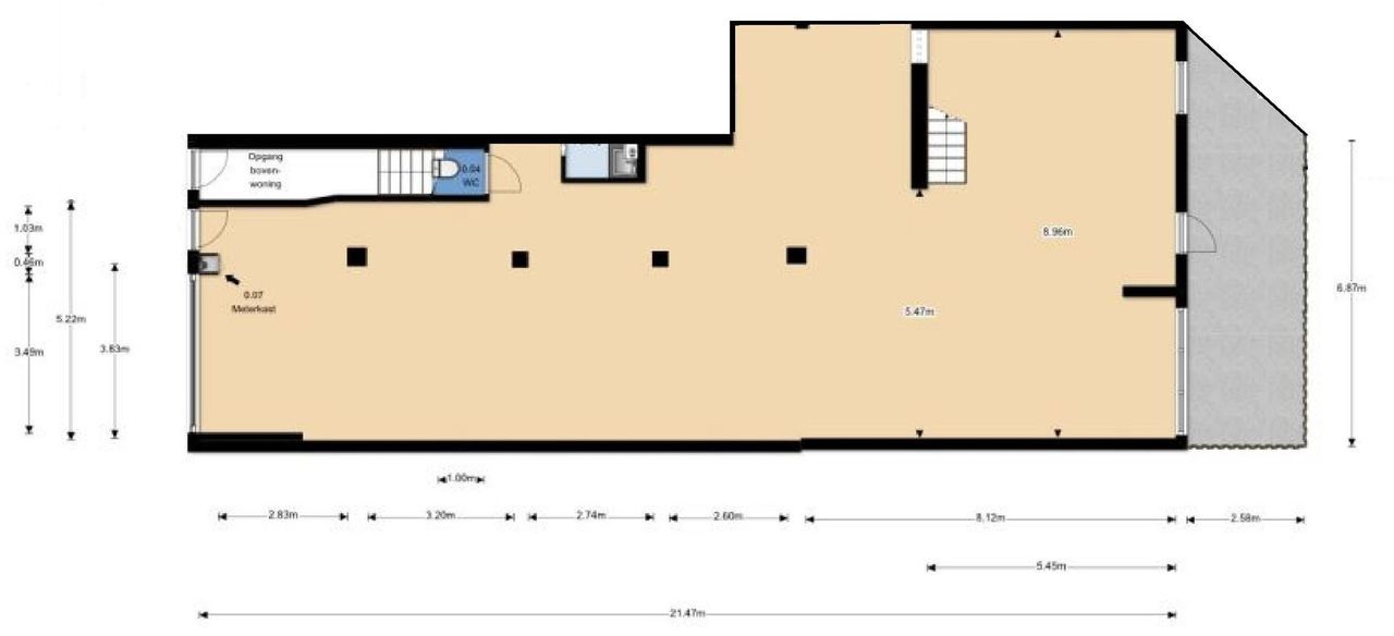
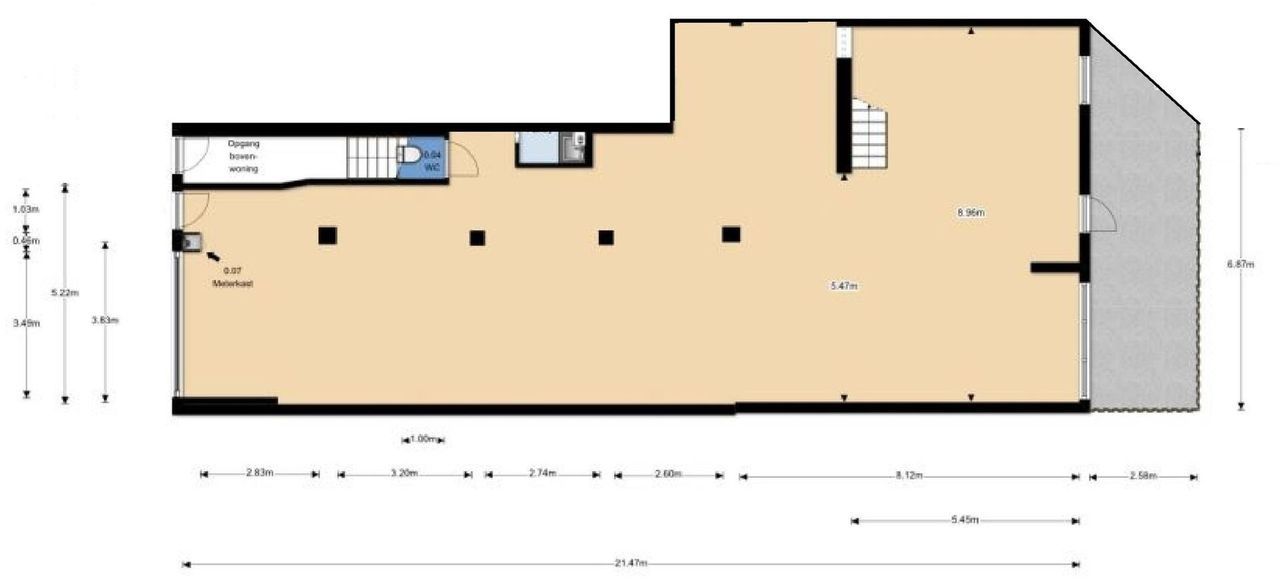
    Vloeroppervlak

    De winkelruimte en secundaire ruimte, onderverdeeld als volgt:

    • Begane grond: circa 150 m² BVO
    • Eerste verdieping (kantoor): circa 30 m² BVO

     

    Frontbreedte

    Circa 5,2 meter.

     

    Gebruik

    De ruimte is bestemd om te worden gebruik voor (op de begane grond):

    1. Detailhandel.
    2. Dienstverlening.
    3. Lichte horeca (mits vergund).

     

    Voor het gehele bestemmingsplan zie: www.omgevingswet.overheid.nl/regels-op-de-kaart.

     

    Huurprijs

    Op aanvraag.

     

    BTW

    Verhuurder zal opteren voor een met BTW belaste verhuur, huurder verleent hiertoe zijn medewerking.  Indien niet geopteerd kan worden voor BTW belaste verhuur zal de huurprijs met een nader te bepalen bedrag worden verhoogd.

     

    Indexering

    Jaarlijks, voor het eerst één jaar na ingangsdatum huurovereenkomst, op basis van de wijziging van het maandprijsindexcijfer volgens de consumentenprijsindex (CPI), reeks CPI alle huishoudens (2015=100), gepubliceerd door het Centraal Bureau voor de Statistiek (CBS). De volgens het bovenstaande geïndexeerde huurprijs zal nimmer lager zijn dan die van de voorafgaande huurjaren.

     

    Servicekosten

    Niet van toepassing. Huurder dient voor eigen rekening en risico overeenkomsten te sluiten met de desbetreffende (nuts)bedrijven.

     

    Bijdrage winkeliersvereniging / BIZ

    Niet bekend. 

     

    Betalingen

    Per kalenderkwartaal vooruit. 

     

    Opleveringsniveau / Staat van verhuur

    Verhuurder verhuurt uitsluitend het casco, maar oplevering zal plaatsvinden in de staat van dat moment, inclusief onder meer de volgende voorzieningen:

    • Representatieve entree.
    • Patio (waardoor ook daglicht aan de achterzijde van de winkelruimte).
    • Pantry.
    • Sanitaire voorziening.
    • CV-installatie.

     

    Huurtermijn

    Maximaal 24 maanden. 

     

    Zekerheidsstelling

    Onvoorwaardelijke bankgarantie of waarborgsom ter grootte van een betalingsverplichting van drie maanden huur inclusief BTW. 

     

    Huurovereenkomst

    Huurovereenkomst conform het model van de Raad voor Onroerende zaken (ROZ), alsmede de daarbij behorende algemene bepalingen en bijzondere bepalingen van verhuurder.

     

    Energielabel

    Nog niet bekend.

     

    Vloerbelasting

    Maximale vloerbelasting is niet meer dan constructief toegestaan.

     

    Aanvaarding

    In overleg.

     

    Courtage

    Mocht door bemiddeling van Local Joe een transactie tot stand komen, zult u ons hiervoor geen kosten of courtage verschuldigd zijn. 

     

    Informatie

    Voor meer informatie of een bezichtiging kunt u zich wenden tot: 

     

    Local Joe

    Telefoonnummer: +31 (0) 85 30 33 485

    E-mail: info@localjoe.nl

    Website: www.localjoe.nl

     

    Disclaimer

    Deze objectinformatie is met zorg samengesteld. Aan de verstrekte gegevens kan echter geen enkel recht worden ontleend en voor de juistheid ervan sluiten wij aansprakelijkheid uit. Deze objectinformatie mag niet worden beschouwd als aanbieding of offerte en wordt verstrekt onder het voorbehoud van goedkeuring door verhuurder c.q. verkoper.

  • Locatie

    [ { "address": "Frederik Hendriklaan 223", "zipCode": "2582 CC", "city": "Den Haag", "lat": 52.0903663, "lng": 4.2742022, "heading": 0, "pitch": 0 } ]
  • Kenmerken

    Overdracht

    Prijs
    Op aanvraag
    Contract lengte
    24 maanden
    Status
    Beschikbaar
    Oplevering
    in overleg

    Bouw

    Hoofdbestemming
    Winkelruimte
    Soort bouw
    Bestaande bouw

    Oppervlakten

    Totaaloppervlakte
    180m²
    Verkoopoppervlakte
    150m²

    Indeling

    Verdiepingen
    2

    Omgeving

    Ligging
    stadskern, woonomgeving
    Welstandklasse
    B1
  • Reageer

    Uw bericht is naar ons verzonden. Wij nemen zo snel mogelijk contact met u op.

    Er is iets mis gegaan met het versturen van het formulier.
    Controleer of u alle velden (goed) heeft ingevoerd en probeer het nog een keer.

    Hoe veel is ?  
  • Documenten

  • Plattegronden


Vergelijkbare objecten


Keizerstraat 148
2584 BM Den Haag
€ 3.000 p.m.
Winkelruimte 189m²
Schoolstraat 25
2511 AW Den Haag
€ 2.500 p.m.
Winkelruimte 139m²
Fijnjekade 225
2521 DT Den Haag
€ 2.550 p.m.
Kantoorruimte 205m²
Verhuurd
Frederikstraat 80
2514 LM Den Haag
€ 2.950 p.m.
Winkelruimte 128m²