Gedempte Burgwal 53, Den Haag

  • Omschrijving

    Winkelruimte / kantoorruimte te huur van in totaal circa 86,49 m² BVO, gelegen aan de Gedempte Burgwal 53 te Den Haag. De winkelruimte ligt in het Oude Centrum van Den Haag, aan de rand van het kernwinkelgebied. De Gedempte Burgwal is onderdeel van China Town, een bruisende en kleurrijke wijk met veel bedrijvigheid.

     

    Adres

    Gedempte Burgwal 52, 2512 BS te Den Haag.

     

    Parkeren

    In de omgeving liggen diverse parkeergarages.

     

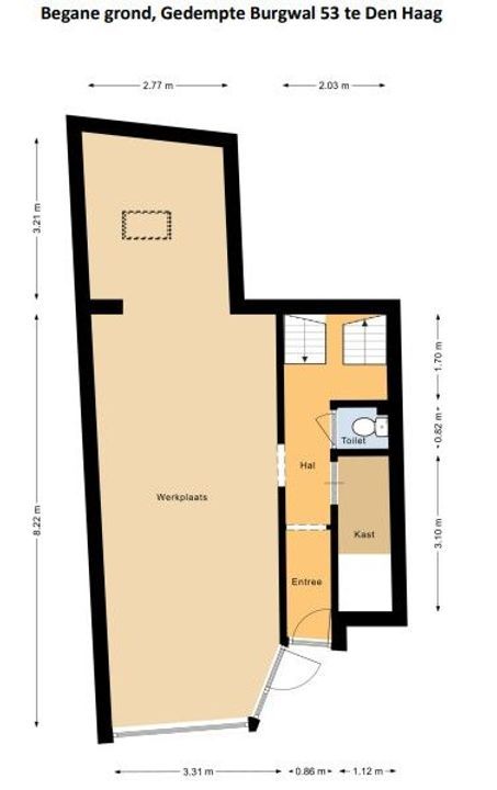
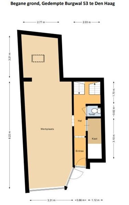
    Vloeroppervlak

    Winkelruimte / kantoorruimte en secundaire ruimte, in totaal circa 86,49 m² BVO, onderverdeeld als volgt:

    • Kelder                                circa 16,4 m² BVO
    • Begane grond                    circa 58,92 m² BVO
    • 1e verdieping                      circa 11,17 m² BVO

     

    De kelder maakt geen onderdeel uit van het gehuurde en wordt “om niet” in gebruik gegeven. Gebruik van de kelder is voor eigen risico.

     

    Frontbreedte

    Circa 3,5 meter.

     

    Gebruik

    De ruimte is bestemd om te worden gebruik voor:

    1. bedrijven in de categorie A van de bij het bestemmingsplan behorende 'Staat van inrichtingen bedrijven functiemenging'.
    2. cultuur en ontspanning, waaronder uitsluitend wordt begrepen atelier, creativiteitscentrum en galerie;
    3. detailhandel;
    4. dienstverlening;
    5. horeca in de categorie ‘licht’ (mits vergund);
    6. kantoor;
    7. maatschappelijk waaronder uitsluitend worden verstaan gezondheidszorg, praktijkruimten, openbare dienstverlening, verenigingsleven en welzijnsinstellingen.

     

    Voor het gehele bestemmingsplan zie www.omgevingswet.overheid.nl/regels-op-de-kaart.

     

    Huurprijs

    € 3.000,- per maand, te vermeerderen met BTW.

     

    BTW

    Verhuurder zal opteren voor een met BTW belaste verhuur, huurder verleent hiertoe zijn medewerking. Indien niet geopteerd kan worden voor BTW belaste verhuur zal de huurprijs met een nader te bepalen bedrag worden verhoogd.

     

    Huurprijsaanpassing

    Jaarlijks, voor het eerst één jaar na ingangsdatum huurovereenkomst, op basis van de wijziging van het maandprijsindexcijfer volgens de consumentenprijsindex (CPI), reeks CPI alle huishoudens (2015=100), gepubliceerd door het Centraal Bureau voor de Statistiek (CBS). De volgens het bovenstaande geïndexeerde huurprijs zal nimmer lager zijn dan die van de voorafgaande huurjaren.

     

    Servicekosten

    Niet van toepassing.

    Huurder dient voor eigen rekening en risico overeenkomsten te sluiten met de desbetreffende (nuts)bedrijven.

     

    Bijdrage winkeliersvereniging / Bedrijveninvesteringszone (BIZ)

    Zie voor meer informatie: https://www.denhaag.nl/nl/ondernemen/bedrijveninvesteringszone-biz.

     

    Betalingen

    Per kalendermaand vooruit. 

     

    Opleveringsniveau / Staat van verhuur

    Verhuurd wordt uitsluitend het casco, maar de ruimte wordt opgeleverd in de staat van dat moment. Eventueel in het gehuurde aanwezige zaken en voorzieningen maken geen deel uit van het gehuurde. Onderhoud en vervanging van deze zaken en voorzieningen zijn voor rekening en risico van huurder. Bij het einde van de huurovereenkomst dient het gehuurde in casco staat te worden opgeleverd, tenzij anders door partijen schriftelijk is overeengekomen.

     

    Huurtermijn

    Minimaal 5 jaar met verlengingsperiodes van steeds 5 jaar. 

     

    Opzegtermijn

    12 maanden.

     

    Zekerheidsstelling

    Onvoorwaardelijke bankgarantie of waarborgsom ter grootte van een betalingsverplichting van tenminste drie maanden huur inclusief BTW.

     

    Huurovereenkomst

    Huurovereenkomst conform het model van de Raad voor Onroerende zaken (ROZ), alsmede de daarbij behorende algemene bepalingen en bijzondere bepalingen van verhuurder.

     

    Energielabel

    Nog niet bekend.

     

    Vloerbelasting

    Maximale vloerbelasting is niet meer dan constructief toegestaan.

     

    Aanvaarding

    Per direct beschikbaar.

     

    Courtage

    Mocht door bemiddeling van Local Joe een transactie tot stand komen, zult u ons hiervoor geen kosten of courtage verschuldigd zijn. 

     

    Informatie

    Voor meer informatie of een bezichtiging kunt u zich wenden tot: 

     

    Local Joe

    Telefoonnummer: +31 (0) 85 30 33 485

    E-mail: info@localjoe.nl

    Website: www.localjoe.nl

     

    Disclaimer

    Deze objectinformatie is met zorg samengesteld. Aan de verstrekte gegevens kan echter geen enkel recht worden ontleend en voor de juistheid ervan sluiten wij aansprakelijkheid uit. Deze objectinformatie mag niet worden beschouwd als aanbieding of offerte en wordt verstrekt onder het voorbehoud van goedkeuring door verhuurder c.q. verkoper.

  • Locatie

    [ { "address": "Gedempte Burgwal 53", "zipCode": "2512 BS", "city": "Den Haag", "lat": 52.0748347, "lng": 4.3109677, "heading": 0, "pitch": 0 } ]
  • Kenmerken

    Overdracht

    Prijs
    € 3.000 p.m.
    Status
    Beschikbaar
    Oplevering
    per direct

    Bouw

    Hoofdbestemming
    Winkelruimte
    Nevenbestemming(en)
    Kantoorruimte
    Soort bouw
    Bestaande bouw

    Oppervlakten

    Totaaloppervlakte
    85m²
  • Reageer

    Uw bericht is naar ons verzonden. Wij nemen zo snel mogelijk contact met u op.

    Er is iets mis gegaan met het versturen van het formulier.
    Controleer of u alle velden (goed) heeft ingevoerd en probeer het nog een keer.

    Hoe veel is ?  
  • Documenten

  • Plattegronden


Vergelijkbare objecten


Keizerstraat 148
2584 BM Den Haag
€ 3.000 p.m.
Winkelruimte 189m²
Verhuurd
Frederikstraat 80
2514 LM Den Haag
€ 2.950 p.m.
Winkelruimte 128m²
Denneweg 120 A
2514 CL Den Haag
€ 3.250 p.m.
Winkelruimte 112m²
Heulstraat 25
2514 ER Den Haag
€ 2.500 p.m.
Winkelruimte 69m²