Zoutmanstraat 39 A, Den Haag

  • Omschrijving

    Onverhuurde winkelruimte te koop van in totaal circa 101,94 m² BVO, gelegen aan de Zoutmanstraat 39A te Den Haag. De Zoutmanstraat ligt in het Zeelheldenkwartier, een gezellige wijk aan de rand van het Haagse centrum. In het Zeeheldenkwartier zijn diverse eigentijde ondernemers en gezellige horeca gevestigd.

     

    Zie voor meer informatie over het winkelgebied ook: www.zeeheldenkwartier.com.

     

    De locatie is tevens bestemd voor wonen.

     

    Adres

    Zoutmanstraat 39A, 2518 GL te Den Haag.

     

    Kadastrale aanduiding

    Gemeente: ‘s-Gravenhage

    Sectie: Z

    Nummer: 2640

    Appartementsindex: A1

     

    Parkeren

    Langs de openbare weg zijn er, te betalen, parkeerplaatsen aanwezig.

     

    Vloeroppervlak

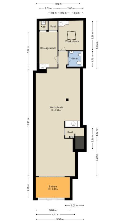
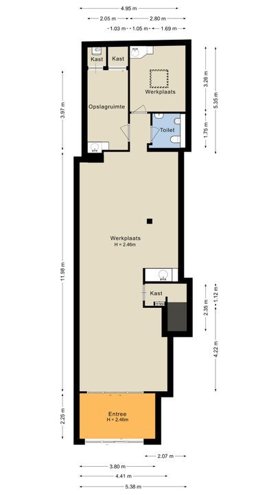
    Winkelruimte en secundaire ruimte, in totaal circa 101,94 m² BVO, gelegen op de begane grond.

     

    Frontbreedte

    Circa 4,5 meter.

     

    Gebruik

    Het object heeft een ruime bestemming en is bestemd om te worden gebruikt voor:

    1. wonen;
    2. detailhandel;
    3. dienstverlening;
    4. maatschappelijke doeleinden, met uitzondering van geestelijke gezondheidszorg;
    5. horeca-inrichtingen voor zover deze voorkomen in categorie I en II van de bij dit plan behorende 'Staat van horeca-inrichtingen';
    6. horeca-inrichtingen voor zover deze voorkomen in respectievelijk categorie III van de bij dit plan behorende 'Staat van horeca-inrichtingen', nadat daarvoor door burgemeester en wethouders conform het bepaalde onder 4.5, vergunning is verleend.

     

    Voor het gehele bestemmingsplan zie: www.omgevingswet.overheid.nl/regels-op-de-kaart.

     

    Koopprijs

    € 315.000,- k.k.

     

    BTW

    Bij de overdracht is geen BTW verschuldigd.

     

    Vereniging van eigenaren

    Informatie op aanvraag.

     

    Staat van oplevering

    Het object wordt geleverd in onverhuurde staat en in de staat “as is”.

     

    Zekerheidsstelling

    Bij ondertekening van de koopovereenkomst zal koper ter meerdere zekerheid voor de nakoming van zijn verplichtingen een waarborgsom voldoen ter grootte van 10% van de koopsom op de kwaliteitsrekening van de notaris binnen tien werkdagen nadat de koopovereenkomst door beide partijen is getekend.

     

    Energielabel

    A+.

     

    Aanvaarding

    Per direct beschikbaar.

     

    Courtage

    Mocht door bemiddeling van Local Joe een transactie tot stand komen, zult u ons hiervoor geen kosten of courtage verschuldigd zijn. 

     

    Informatie

    Voor meer informatie of een bezichtiging kunt u zich wenden tot: 

     

    Local Joe

    Telefoonnummer: +31 (0) 85 30 33 485

    E-mail: info@localjoe.nl

    Website: www.localjoe.nl

     

    Disclaimer

    Deze objectinformatie is met zorg samengesteld. Aan de verstrekte gegevens kan echter geen enkel recht worden ontleend en voor de juistheid ervan sluiten wij aansprakelijkheid uit. Deze objectinformatie mag niet worden beschouwd als aanbieding of offerte en wordt verstrekt onder het voorbehoud van goedkeuring door verhuurder c.q. verkoper.

  • Locatie

    [ { "address": "Zoutmanstraat 39", "zipCode": "2518 GL", "city": "Den Haag", "lat": 52.0816163, "lng": 4.2956626, "heading": 0, "pitch": 0 } ]
  • Kenmerken

    Overdracht

    Prijs
    € 315.000 k.k.
    Status
    Beschikbaar

    Bouw

    Hoofdbestemming
    Winkelruimte
    Nevenbestemming(en)
    Horeca
    Soort bouw
    Bestaande bouw

    Oppervlakten

    Totaaloppervlakte
    102m²
  • Reageer

    Uw bericht is naar ons verzonden. Wij nemen zo snel mogelijk contact met u op.

    Er is iets mis gegaan met het versturen van het formulier.
    Controleer of u alle velden (goed) heeft ingevoerd en probeer het nog een keer.

    Hoe veel is ?  
  • Documenten

  • Plattegronden