Denneweg 1, Den Haag

  • Omschrijving

    Winkelruimte / horecaruimte te huur van in totaal circa 166,87 m² BVO, gelegen aan de Denneweg 1 te Den Haag. De Denneweg ligt in het hart van Buurtschap 2005, een sfeervol en levendig Haags winkel- en horecagebied. Aan de Denneweg zijn diverse speciaalzaken gevestigd. Daarnaast zijn er diverse aantrekkelijke horecagelegenheden te vinden.

     

    Zie voor meer informatie over het winkelgebied: www.denneweg.nl.

     

    Adres

    Denneweg 1, 2514 CB te Den Haag.

     

    Parkeren

    Langs de openbare weg zijn er te betalen parkeerplaatsen aanwezig. Op loopafstand ligt Parkeergarage Museumkwartier.

    Aan de Denneweg is een fietsenstalling van Biesieklette gevestigd.

     

    Vloeroppervlak

    Winkelruimte / horecaruimte en secundaire ruimte, in totaal circa 166,86 m² BVO, onderverdeeld als volgt:

    • Begane grond: circa 83,31 m² BVO.
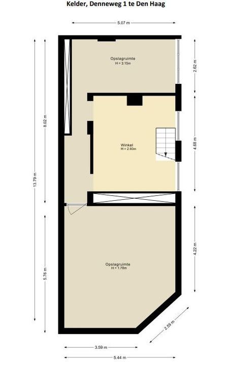
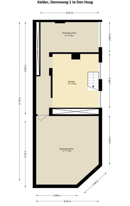
    • Kelder: circa 83,56 m² BVO.

     

    De kelder maakt geen onderdeel uit van het gehuurde en wordt “om niet” in gebruik gegeven. Gebruik van de kelder is voor eigen risico.

     

    Frontbreedte

    Circa 10 meter.

     

    Gebruik

    De ruimte is bestemd om te worden gebruik voor:

    1. Detailhandel.
    2. Dienstverlening.
    3. Horeca in de categorie “licht” (mits vergund).

     

    Voor het gehele bestemmingsplan zie: www.omgevingswet.overheid.nl/regels-op-de-kaart.

     

    Huurprijs

    Op aanvraag.

     

    BTW

    Verhuurder zal opteren voor een met BTW belaste verhuur, huurder verleent hiertoe zijn medewerking.  Indien niet geopteerd kan worden voor BTW belaste verhuur zal de huurprijs met een nader te bepalen bedrag worden verhoogd.

     

    Huurprijsaanpassing

    Jaarlijks, voor het eerst één jaar na ingangsdatum huurovereenkomst, op basis van de wijziging van het maandprijsindexcijfer volgens de consumentenprijsindex (CPI), reeks CPI alle huishoudens (2015=100), gepubliceerd door het Centraal Bureau voor de Statistiek (CBS). De volgens het bovenstaande geïndexeerde huurprijs zal nimmer lager zijn dan die van de voorafgaande huurjaren.

     

    Servicekosten

    Niet van toepassing.

    Huurder dient voor eigen rekening en risico overeenkomsten te sluiten met de desbetreffende (nuts)bedrijven.

     

    Bijdrage winkeliersvereniging / Bedrijveninvesteringszone (BIZ)

    Zie voor meer informatie: www.denhaag.nl/nl/ondernemen/bedrijveninvesteringszone-biz.

     

    Betalingen

    Per kalendermaand vooruit. 

     

    Opleveringsniveau / Staat van verhuur

    Verhuurd wordt uitsluitend het casco, maar de ruimte wordt opgeleverd in de staat van dat moment. Eventueel in het gehuurde aanwezige zaken en voorzieningen maken geen deel uit van het gehuurde. Onderhoud en vervanging van deze zaken en voorzieningen zijn voor rekening en risico van huurder. Bij het einde van de huurovereenkomst dient het gehuurde in casco staat te worden opgeleverd, tenzij anders door partijen schriftelijk is overeengekomen.

     

    Huurtermijn

    Minimaal 5 jaar met verlengingsperiodes van steeds 5 jaar. 

     

    Opzegtermijn

    12 maanden.

     

    Zekerheidsstelling

    Onvoorwaardelijke bankgarantie of waarborgsom ter grootte van een betalingsverplichting van tenminste drie maanden huur inclusief BTW.

     

    Huurovereenkomst

    Huurovereenkomst conform het model van de Raad voor Onroerende zaken (ROZ), alsmede de daarbij behorende algemene bepalingen en bijzondere bepalingen van verhuurder.

     

    Energielabel

    Nog niet bekend.

     

    Vloerbelasting

    Maximale vloerbelasting is niet meer dan constructief toegestaan.

     

    Aanvaarding

    Per 1 oktober 2026.

     

    Courtage

    Mocht door bemiddeling van Local Joe een transactie tot stand komen, zult u ons hiervoor geen kosten of courtage verschuldigd zijn. 

     

    Informatie

    Voor meer informatie of een bezichtiging kunt u zich wenden tot: 

     

    Local Joe

    Telefoonnummer: +31 (0) 85 30 33 485

    E-mail: info@localjoe.nl

    Website: www.localjoe.nl

     

    Disclaimer

    Deze objectinformatie is met zorg samengesteld. Aan de verstrekte gegevens kan echter geen enkel recht worden ontleend en voor de juistheid ervan sluiten wij aansprakelijkheid uit. Deze objectinformatie mag niet worden beschouwd als aanbieding of offerte en wordt verstrekt onder het voorbehoud van goedkeuring door verhuurder c.q. verkoper.

  • Locatie

    [ { "address": "Denneweg 1", "zipCode": "2514 CB", "city": "Den Haag", "lat": 52.0844205, "lng": 4.3135856, "heading": 0, "pitch": 0 } ]
  • Kenmerken

    Overdracht

    Prijs
    Op aanvraag
    Status
    Beschikbaar
    Oplevering
    in overleg

    Bouw

    Hoofdbestemming
    Winkelruimte
    Nevenbestemming(en)
    Horeca
    Soort bouw
    Bestaande bouw

    Oppervlakten

    Totaaloppervlakte
    167m²

    Indeling

    Verdiepingen
    2
  • Reageer

    Uw bericht is naar ons verzonden. Wij nemen zo snel mogelijk contact met u op.

    Er is iets mis gegaan met het versturen van het formulier.
    Controleer of u alle velden (goed) heeft ingevoerd en probeer het nog een keer.

    Hoe veel is ?  
  • Documenten

  • Plattegronden


Vergelijkbare objecten


Spuistraat 36
2511 BE Den Haag
Op aanvraag
Winkelruimte 259m²
Frederik Hendriklaan 256
2582 BM Den Haag
Op aanvraag
Winkelruimte 215m²
Deltaplein 310
2554 GS Den Haag
Op aanvraag
Winkelruimte 246m²